One Wynkoop

Listing Tools

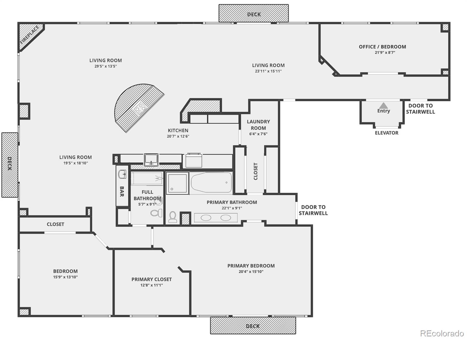
Luxury Living with Iconic Views in the Heart of Denver! Welcome to 1735 19th Street #5D, a truly exceptional residence that combines upscale city living with stunning views and unparalleled comfort. Overlooking Coors Field's outfield, McGregor Square, and the lively plaza below, this spacious, recently renovated condominium offers a rare opportunity to experience Denver from three unique private balconies. Step off the elevator into your own private corridor entry, no shared hallways here. The open layout features multiple distinct living spaces, ideal for entertaining or relaxing in refined comfort. The centrally located kitchen is the heart of the home, outfitted with high-end appliances, a generous island with gas cooktop and vented hood, and plenty of counter space to impress your guests. This 3-bedroom, 2-bath home includes a luxurious primary suite featuring a spa-inspired 5-piece bathroom with a steam shower, jetted tub, and a massive walk-in closet. Natural light pours in from walls of windows, highlighting the high ceilings and stylish finishes throughout. Recent upgrades include a $10K professionally installed Audio/Video system perfect for modern living. Enjoy the best of both worlds: the energy of LoDo and downtown Denver at your doorstep, and the peace of a quiet, well-maintained building. You're just steps from Union Station, premier restaurants, entertainment, and multiple transit options. Included with the unit are two parking spaces, one in a secure garage and another covered, behind a gated mesh wall. This rare combination of location, luxury, and livability makes this home a true standout. Come rent this incredible condo, you may never want to leave.

Property Details of 1735 19th Street, Unit 5D

Map Location

Listed by Andrew Pazzali of Century 21 Trenka Real Estate

The content relating to real estate for sale in this Web site comes in part from the Internet Data eXchange (“IDX”) program of METROLIST, INC., DBA RECOLORADO® Real estate listings held by brokers other than Glen Fishman are marked with the IDX Logo. This information is being provided for the consumers’ personal, non-commercial use and may not be used for any other purpose. All information subject to change and should be independently verified.

This publication is designed to provide information with regard to the subject matter covered. It is displayed with the understanding that the publisher and authors are not engaged in rendering real estate, legal, accounting, tax, or other professional services and that the publisher and authors are not offering such advice in this publication. If real estate, legal, or other expert assistance is required, the services of a competent, professional person should be sought.

The information contained in this publication is subject to change without notice. METROLIST, INC., DBA RECOLORADO MAKES NO WARRANTY OF ANY KIND WITH REGARD TO THIS MATERIAL, INCLUDING, BUT NOT LIMITED TO, THE IMPLIED WARRANTIES OF MERCHANTABILITY AND FITNESS FOR A PARTICULAR PURPOSE. METROLIST, INC., DBA RECOLORADO SHALL NOT BE LIABLE FOR ERRORS CONTAINED HEREIN OR FOR ANY DAMAGES IN CONNECTION WITH THE FURNISHING, PERFORMANCE, OR USE OF THIS MATERIAL.

All real estate advertised herein is subject to the Federal Fair Housing Act and the Colorado Fair Housing Act, which Acts make it illegal to make or publish any advertisement that indicates any preference, limitation, or discrimination based on race, color, religion, sex, handicap, familial status, or national origin.

METROLIST, INC., DBA RECOLORADO will not knowingly accept any advertising for real estate that is in violation of the law. All persons are hereby informed that all dwellings advertised are available on an equal opportunity basis.

©2025 METROLIST, INC., DBA RECOLORADO® – All Rights Reserved 6455 S. Yosemite St., Suite 300 Greenwood Village, CO 80111 USA

ALL RIGHTS RESERVED WORLDWIDE. No part of this publication may be reproduced, adapted, translated, stored in a retrieval system or transmitted in any form or by any means, electronic, mechanical, photocopying, recording, or otherwise, without the prior written permission of the publisher. The information contained herein including but not limited to all text, photographs, digital images, virtual tours, may be seeded and monitored for protection and tracking.

Hi there! How can we help you?

Contact us using the form below or give us a call.

Send Us A Message:

By providing Glen Fishman your contact information, you acknowledge and agree to our Privacy Policy and consent to receive marketing communications, including through automated calls, texts, and e-mails, some of which may use artificial or prerecorded voices. This consent is unnecessary for our services, and you may opt-out anytime. To opt out of texts, you can reply "stop" anytime. To opt out of e-mails, you can click on the unsubscribe link in the e-mails. Message and data rates may apply from your carriers.

Do not fill in this field:

This site is protected by reCAPTCHA and the Google Privacy Policy and Terms of Service apply.

Hi there! How can we help you?

Contact us using the form below or give us a call.

Send Us A Message:

Do not fill in this field:

This site is protected by reCAPTCHA and the Google Privacy Policy and Terms of Service apply.

Hi there! How can we help you?

Contact us using the form below or give us a call.

Send Us A Message:

Do not fill in this field:

This site is protected by reCAPTCHA and the Google Privacy Policy and Terms of Service apply.

Do not fill in this field:

This site is protected by reCAPTCHA and the Google Privacy Policy and Terms of Service apply.

Do not fill in this field:

This site is protected by reCAPTCHA and the Google Privacy Policy and Terms of Service apply.

Do not fill in this field:

This site is protected by reCAPTCHA and the Google Privacy Policy and Terms of Service apply.

$

Do not fill in this field:

This site is protected by reCAPTCHA and the Google Privacy Policy and Terms of Service apply.